Notice: 関数 WP_Scripts::add が誤って呼び出されました。ハンドル「wpcf7-recaptcha」のスクリプトは、未登録の依存関係とともにキューへ追加されました: google-recaptcha。 詳しくは WordPress のデバッグをご覧ください。 (このメッセージはバージョン 6.9.1 で追加されました) in /home/diyworkskyoto/www/sign.com/sys/wp-includes/functions.php on line 6131
ブログ
2018.08.07

京都 M様邸マンションリノベーション始まるよ~(*^_^*)

こんにちは。

京都でリノベーション、リフォームで暮らしを変える株式会社サインです。

今日は気温少しマシなような(*^_^*) 

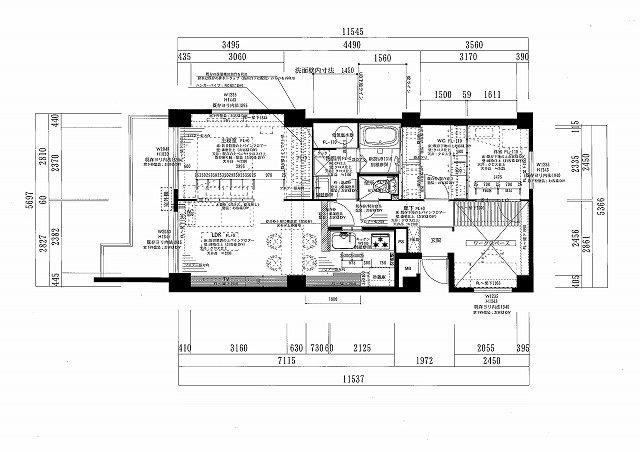
ただ今計画中の京都市西京区M様邸マンションリノベーション工事。

本日、近隣のご挨拶まわりにお伺いしてきましたーーー!!!!!

これをしていると、いよいよ始まるなぁ~って気が引き締まります。IMG_7487.jpg

松田さん.jpg

今回もDIY満載のリノベーションになりそう!(^^)!

詳細はこちら → https://www.kyoto-sign.com/renovation/2018/08/diy/

ガンバっていきましょー!

社名:株式会社サイン

住所:京都市中京区宗林町96 藤和シティホームズ御池1F

URL:https://www.kyoto-sign.com/

TEL:075-708-7601    FAX:075-708-7602

地図(新).jpg